88_MFW
Multiples Feuerwehrhaus Kerpen Manheim-Neu
Neubau einer Feuerwehr mit Ausbildungsräumen
BGF: 450 qm
Bauherrschaft: Kolpingstadt Kerpen, Manheimer Ring 31
Leistungsumfang: Generalplanung, Objektplanung LP 1–8
Fertigstellung: 2021
Im multiplen Feuerwehrhaus wird der Löschzug Manheim der Freiwilligen Feuerwehr Kerpen seinen Platz finden. Der Löschzug Manheim verfügt aktuell über 25 Mitglieder in der Einsatzabteilung, 14 Mitglieder in der Jugendfeuerwehr und 10 Mitglieder in der Ehrenabteilung.
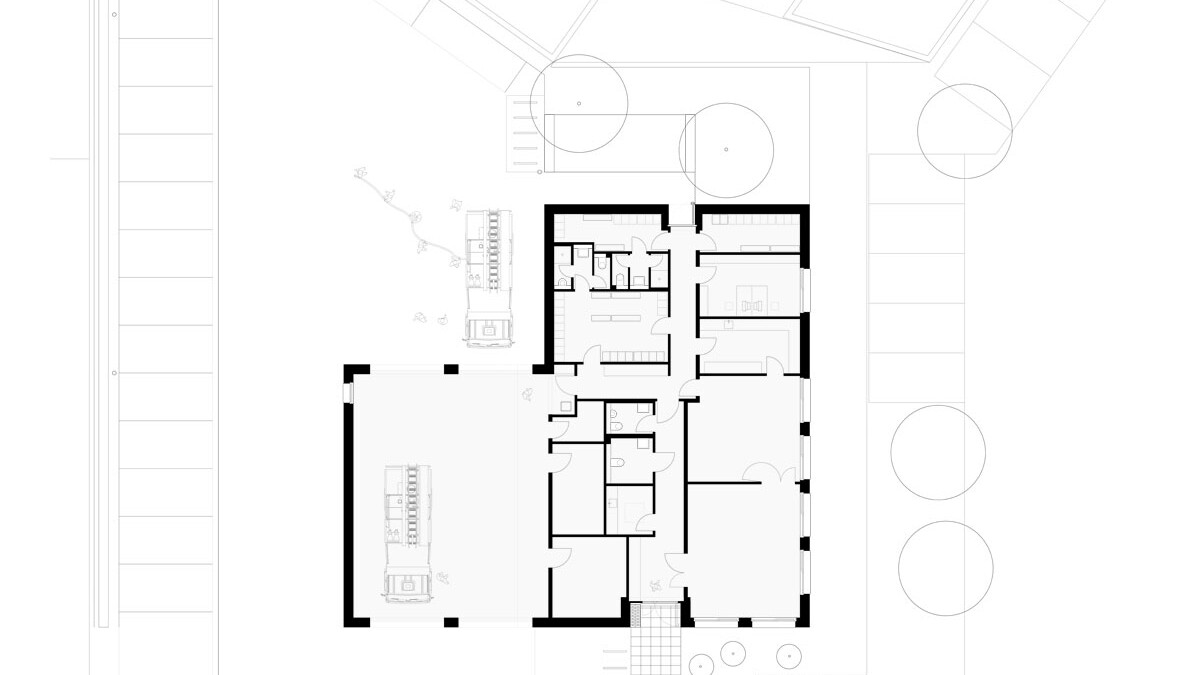
Das Gebäude wird im Grundriss als Winkel entwickelt. Die Fahrzeughalle wird als Durchfahrtshalle mit Toren zur Straße und zum Hof konzipiert, sodass die Einsatzfahrzeuge von hinten in die Fahrzeughalle in Fahrtrichtung eingestellt werden können. Neben den zwei Stellplätzen für die Einsatzfahrzeuge befinden sich im geplanten Teilbereich der Feuerwehr für die Mitglieder der Einsatzabteilung und der Jugendfeuerwehr Umkleideräume, welche für Damen und Herren baulich voneinander getrennt und direkt mit den Sanitärbereichen verbunden sind. Für die notwendige Aus- und Fortbildung ist ein Schulungsraum mit Teeküche vorhanden. Des Weiteren sind im Baukörper ein Büro für die Löschzugführung und ein Lagerraum für feuerwehrtechnische Gerätschaften vorhanden.
Im Einsatzfall und im Rahmen der Aus- und Fortbildungs-veranstaltungen stehen für das Abstellen der Privatfahrzeuge auf dem Gelände insgesamt 18 Stellplätze zur Verfügung.
Im Baukörper ist für das örtliche Dorfleben und andere Nutzer ein Versammlungsraum integriert, welcher über einen separaten Eingang, eine Teeküche und eine barrierefreie WC-Anlage verfügt.
Es handelt sich um ein nicht unterkellertes, eingeschossiges, traufständiges Gebäude in konventioneller Massivbauweise mit Stahlbetonfundamenten und Mauerwerkswänden sowie einem ziegelgedeckten Pfettendach als Satteldach in Holzbauweise.
Nicht tragende Innenwände werden als Trockenbauwände ausgebildet, die Außenfassade wird als zweischalige Wand mit Verblendmauerwerk ausgeführt.
Fotos: Viola Epler





















