40_KEI
Keipp KG
Auftraggeber: Keipp KG
Leistungsumfang: LP 1-8
BGF: 2.700
Fertigstellung: 2014
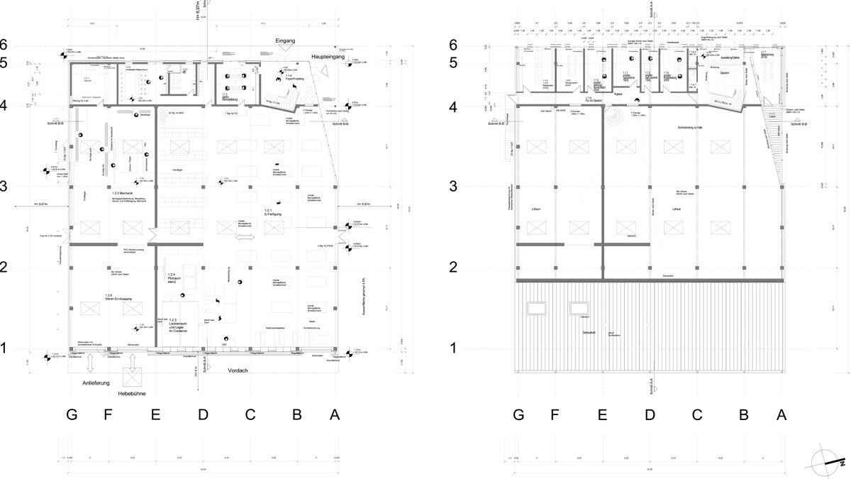
Auf einem Eckgrundstück der Technologiemeile Ludwigshafen entsteht ein neuer Unternehmensstandort für die Keipp Unternehmensgruppe. Fünf Unternehmen mit teils ähnlichen Profilen teilen sich den Neubau, der in zwei Bauabschnitten realisiert werden soll. Der erste Abschnitt umfasst ca. 1.350 qm für elektra und ProPlan, der zweite erweitert das Ensemble um ca. 2.650 qm für Göckler Holle, mosbau und Keipp. Die räumliche Nähe stärkt Kooperationen und bündelt Funktionen.
Das Gebäude bildet einen kraftvollen, zusammenhängenden Baukörper. Zur Straße zeigt es ein repräsentatives Gesicht: Eine farbige Pfosten-Riegel-Fassade mit Glas und Metallflächen prägt das Obergeschoss. Im Hof orientieren sich Werkstatt und Logistik zur Bahnlinie, funktional und offen für betriebliche Abläufe. Großzügige Verglasungen markieren die Zugänge. Eine überhöhte Attika an der Nordwestecke setzt den Haupteingang in Szene und schafft Raum für Firmenkennzeichnung.
Die Struktur trennt Massiv- und Leichtbau. Straßenseitig wurde ein kompakter Verwaltungsbau ausgebildet, östlich eine flexible Hallenkonstruktion mit großem Stützenraster. Die klar gegliederte innere Organisation folgt den betrieblichen Abläufen von Werkstatt und Lager. Büroflächen und Besprechungsräume liegen im Obergeschoss. Synergien entstehen durch gemeinschaftlich genutzte Infrastrukturen.
Der Außenraum übernimmt gestalterische wie ökologische Funktionen. Eine begrünte Randzone mit Bäumen, Versickerungsflächen und ein leicht modellierter Streifen entlang der Ludwig-Reichling-Straße gliedern das Grundstück zur Straße hin. Die Stellplätze im ersten Bauabschnitt werden von acht großkronigen Bäumen begleitet. Regenwasser wird vor Ort versickert.
Der benachbarte Landschaftsstreifen im Norden bleibt unbebaut und bietet Potenzial für langfristige Freiraumentwicklung. Südlich des Grundstücks sind technologieaffine Nachnutzungen vorgesehen. Das neue Gebäude positioniert sich als Teil eines wachsenden Innovationsquartiers.
Mit seiner gemeinsamen Hülle, funktionalen Klarheit und offenem Ausdruck bildet das Betriebsgebäude ein starkes räumliches und identitätsstiftendes Zentrum für die Keipp Unternehmensgruppe.


















